




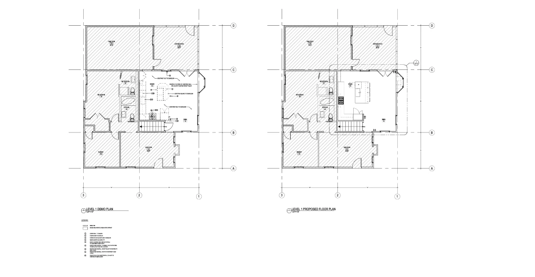
JEFFERSON HOUSE
Phase: SD-DD-CD-CA
Status: Completed 2022
Location: Falls Church, VA
Program: interior renovation including kitchen, restroom, and dining room. Exterior deck conversion into interior sunroom/dining room
Photo credit: DMV Sky LLC



















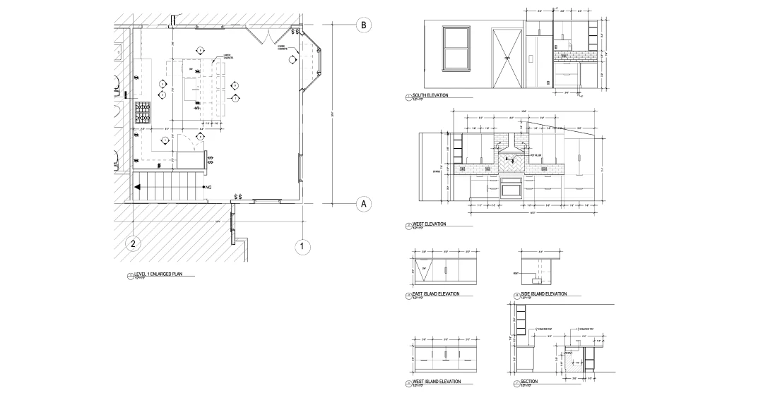
Phase: SD-DD-CD-CA
Status: Completed 2022
Location: Falls Church, VA
Program: interior renovation including kitchen, restroom, and dining room. Exterior deck conversion into interior sunroom/dining room
Photo credit: DMV Sky LLC













