

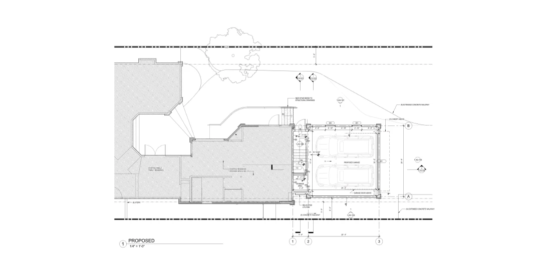
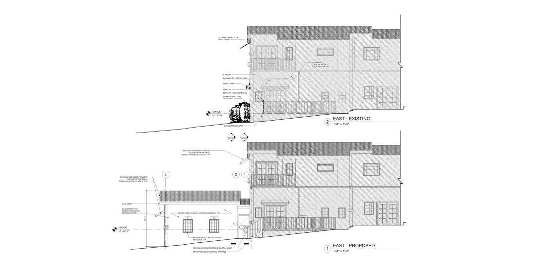
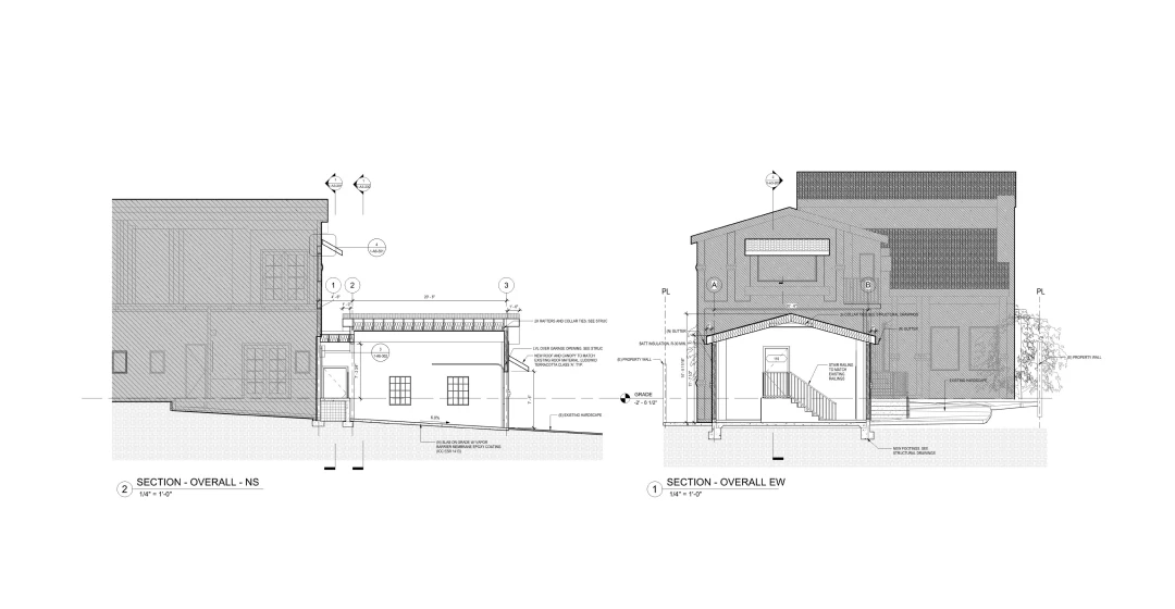
GARAGE ADDITION
Phase: SD-DD
Location: Glendale, CA
Program: new 520 SF 2-car garage attached addition to an existing single-family home








Phase: SD-DD
Location: Glendale, CA
Program: new 520 SF 2-car garage attached addition to an existing single-family home





