


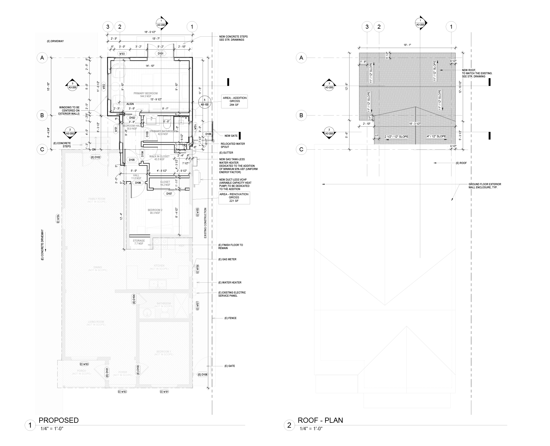
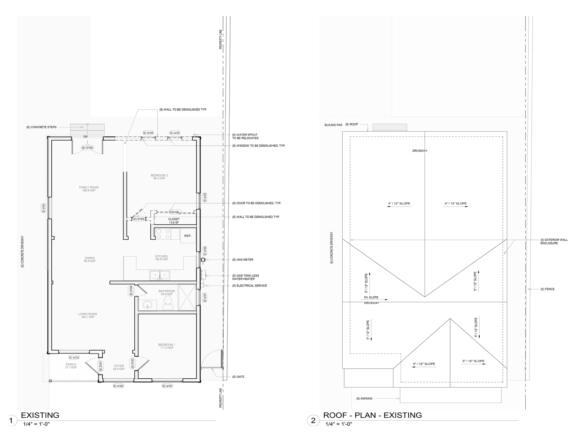
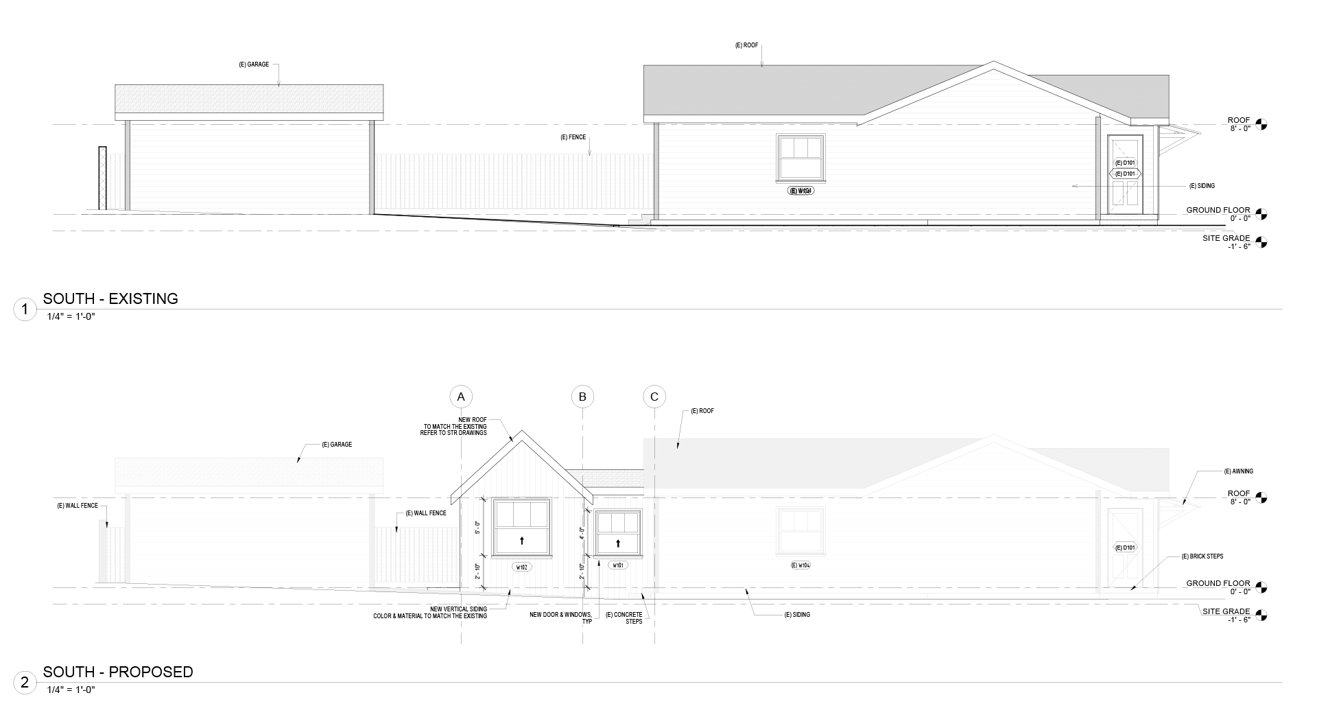
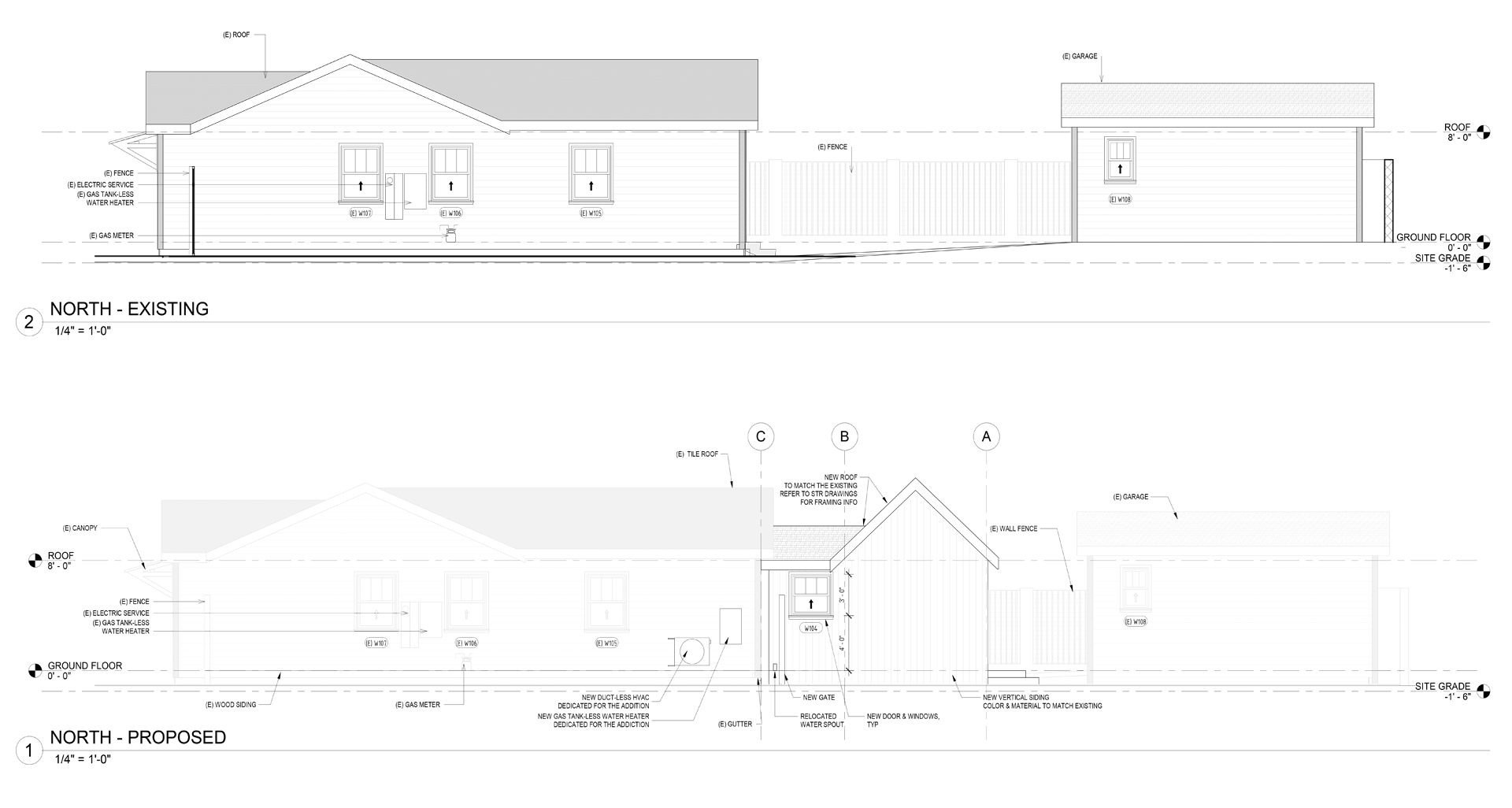
CYPRESS ADDITION
Phase: SD-DD
Status: In Progress
Location: Lomita, CA
Program: 284 SF addition and 222 SF interior remodel to an existing 992 SF 1-story single family home




















Phase: SD-DD
Status: In Progress
Location: Lomita, CA
Program: 284 SF addition and 222 SF interior remodel to an existing 992 SF 1-story single family home
















