


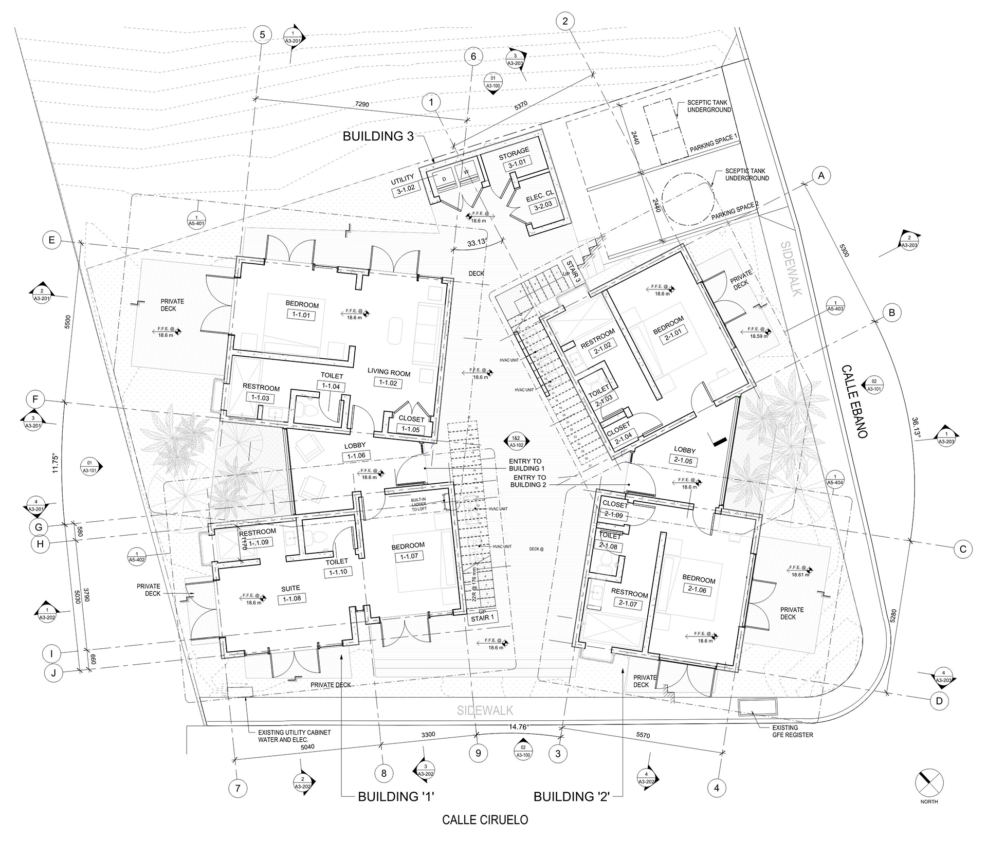
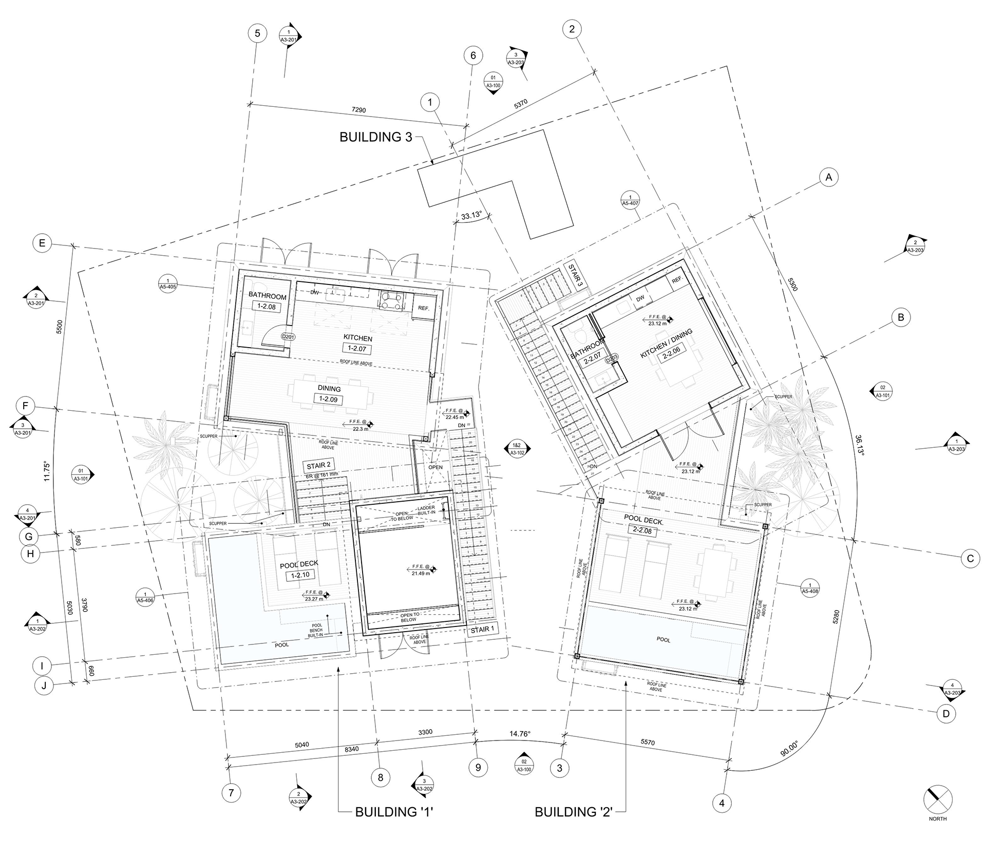
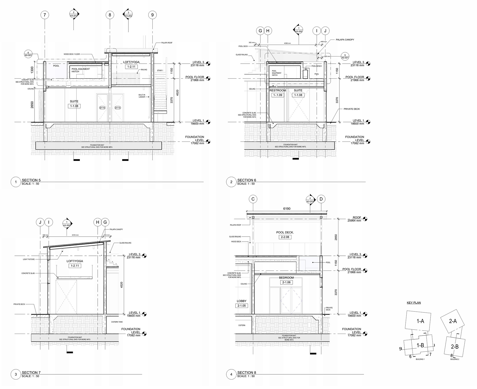
CASA KUUN
Phase: SD-DD-CD
Status: In progress
Location: Puerto Escondido, Oaxaca, Mexico
Program: two 2-story beachfront single-family homes with recreation areas















Phase: SD-DD-CD
Status: In progress
Location: Puerto Escondido, Oaxaca, Mexico
Program: two 2-story beachfront single-family homes with recreation areas











