

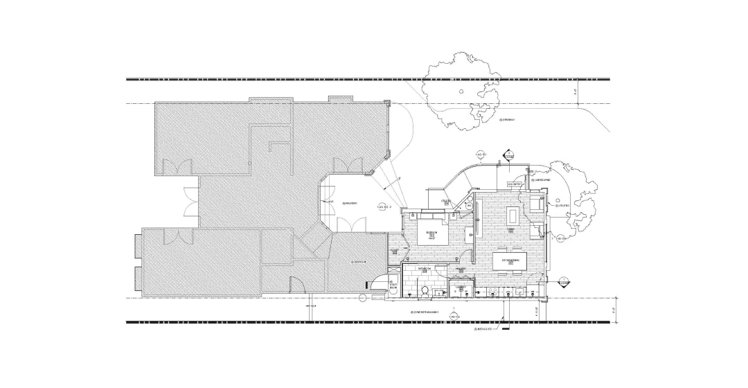
ADU CONVERSION
Phase: SD-DD-CD-CA
Status: Completed 2024
Location: Glendale, CA
Program: 662SF garage conversion into a ADU and a new exterior concrete deck of 108sf






Phase: SD-DD-CD-CA
Status: Completed 2024
Location: Glendale, CA
Program: 662SF garage conversion into a ADU and a new exterior concrete deck of 108sf



