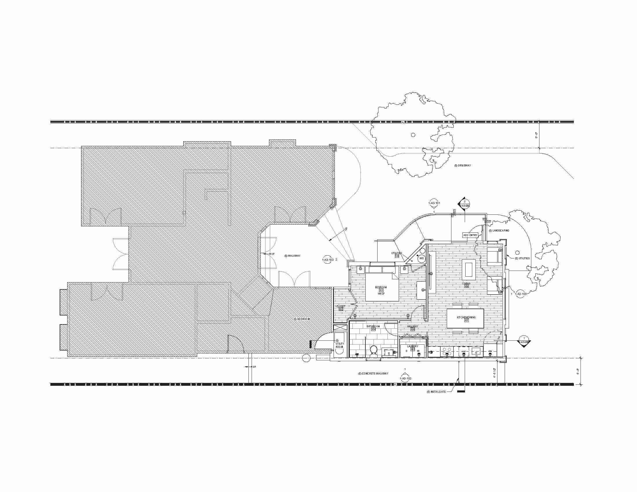
Single Project 1

DD-CD
Status: in construction
RoIe: job captain
Program: 327,613 AGSF CommerciaI

UP ↑